Erweiterung und Sanierung
Rhein-Maas-Gymnasium 2025
G8-G9 Aufstockung und Sanierung Naturwissenschaftsräume
Aktuell: Baustellenfotos Oktober 2025

Aktuell: Baustellenfotos Oktober 2025


Durch die Umstellung von G8 auf G9 entsteht zusätzlicher Raumbedarf für rund 930 Schülerinnen und Schüler.
2018 wurde vom Landtag NRW das 13. Schulrechtsänderungsgesetz verabschiedet und die Dauer der Bildungsgänge in der Sekundarstufe I neu geregelt. Den Gymnasien in NRW wurde damit freigestellt, die Abiturprüfung zukünftig nach acht oder nach neun Schuljahren durchzuführen. Bei dieser einmaligen Entscheidung haben alle acht städtischen Gymnasien in Aachen sich für eine Umstellung auf 9 Jahre (G9) entschieden.
Der Fachbereich Kinder, Jugend und Schule (FB 45) geht derzeit von ca. 930 Schülerinnen und Schüler (SuS) aus, die dadurch zusätzlich an den Gymnasien in Aachen beschult werden.
Unter diesen Gesichtspunkten wurden alle städtischen Gymnasien untersucht. In einem ersten Schritt werden vier Gymnasien durch bauliche Maßnahmen räumlich erweitert, um die zu erwartende erhöhte Schülerzahl aufnehmen zu können.



























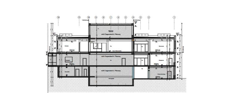
Gestaltung und Fassade:
Auf dem Bestandskörper des Verwaltungs-und Spezialklassentraktes wird ein eingeschossiger Körper mit gleichen Ausmaßen gesetzt.
Die Aufstockung erfolgt im Holzbau. Die neue Fassade steht leicht über den Bestand hervor und wechselt zwischen vertikaler Boden- und Deckelschalung und horizontaler Nut- und Federschalung. Das Holz wird vorvergraut.
Holz-Aluminiumfenster bilden eine Bandfassade mit hellen Blindpaneelen, die von der plastischen Holzverkleidung leben. Außenjalousien werden eingebaut, die Wände in Holztafelbauweise errichtet.
Die Bestandsfassaden sind als Bänder über die gesamte Gebäudebreite gestaltet und mit hellgrauem WDVS versehen. Die beiden Bereiche setzen sich durch die unterschiedliche Gestaltung voneinander ab.
Grundriss und Innenausstattung:
Die Erweiterung wird vom Stammklassentrakt aus erschlossen. Ein ringförmiger Flur umschließt ein großes Lernzentrum, den Innenhof, sowie zwei Differenzierungsräume. Die weiteren Räume orientieren sich nach außen.
Ein weiterer Differenzierungsraum liegt mit Blick zur Mensa zwischen neuem Treppenhaus und Lernzentrum.
Der Grundriss ist in drei Brandabschnitte gegliedert, um viele holzsichtige Oberflächen zu ermöglichen.
Bis auf die Technikräume erhalten alle Räume abgehängte Decken mit akustischer Wirksamkeit. Klassen- und Kursräume werden an der Rückwand mit schallabsorbierenden Vorsatzschalen als Holzlamellenwand ausgestattet.

Für die Baumaßnahmen der Stadt Aachen spielt Nachhaltigkeit eine immer bedeutendere Rolle. Vorbildfunktion als öffentlicher Bauherr, der Wunsch nach gesunden Gebäuden, ein ökonomischer und ökologischer Betrieb über die gesamte Lebensdauer, führen zu Anforderungen, die weit über die eines energieeffizienten Gebäudes hinausgehen.
Die Planung soll sich daher sich diese an folgenden Bewertungskriterien orientieren:
Die Erweiterung orientiert sich an den Prinzipien des zukunftsorientierten Bauen.