Diese Seite wurde automatisch übersetzt. Es kann daher zu Abweichungen oder Ungenauigkeiten im Text kommen. Verbindlich ist ausschließlich die Originalfassung. Rechtsansprüche aus Inhalten der übersetzten Version sind ausgeschlossen.

Uitbreiding en renovatie
Rhein-Maas-Gymnasium 2025

G8-G9 uitbreiding en renovatie van wetenschapsruimtes

Actueel: Bouwplaatsfoto's november 2025

In de tijdbalk van de projectfasen bevindt dit project zich in de bouwfase.
0715-RMG-Perspectief schoolplein


Gelegenheid en doel

Door de overgang van G8 naar G9 zal er extra ruimte nodig zijn voor ongeveer 930 leerlingen.

  • Kerngegevens

    • Toevoeging van één verdieping aan de administratieve NW vleugel
    • Nieuwe ruimtes: 4 klaslokalen, 1 vervangend klaslokaal, 3 cursusruimtes, 2 differentiatieruimtes, 1 multifunctionele ruimte, open leercentrum
    • Renovatie op de begane grond: biologielokalen (2 klaslokalen, collectie, voorbereiding) Renovatie van de lerarenkamer vanwege de dakconstructie
    • Barrièrevrije toegang tot alle verdiepingen dankzij liftinstallatie
    • Fotovoltaïsch systeem op het dak
    • Constructie van houten panelen, transparant van binnen en buiten
    • Geluidsabsorberende achterpanelen
    • Netto vloeroppervlak: Bovenverdieping nieuw 1.050 m², begane grond renovatie 375 m²
    • Bruto ruimtevolume: Bovenverdieping nieuw 5.080 m³, begane grond renovatie 1.770 m³
    • Voorlopige maatregel: renovatie van de kelder, voltooid in 2024
    • Architecten: Hahn Helten Planungs GmbH
    • Start realisatie: juli 2024
    • Verwachte opleverdatum: Juni 2026
  • Wettelijke basis

    In 2018 nam het deelstaatparlement van Noordrijn-Westfalen de 13e Wet tot wijziging van het schoolrecht aan en reorganiseerde de duur van de onderwijsprogramma's in de onderbouw van het voortgezet onderwijs. De gymnasia in NRW kregen zo de mogelijkheid om het Abitur-examen voortaan na acht of negen schooljaren af te nemen. In dit unieke besluit hebben alle acht gemeentelijke gymnasia in Aken gekozen voor een overgang naar negen jaar (G9).

    Het Departement voor Kinderen, Jeugd en Scholen (FB 45) gaat er momenteel van uit dat hierdoor ongeveer 930 extra leerlingen (SuS) naar de gymnasia in Aken zullen gaan.

    Alle gemeentelijke gymnasia werden vanuit dit perspectief geanalyseerd. In een eerste stap zullen vier gymnasia door structurele maatregelen worden uitgebreid om de verwachte toename van het aantal leerlingen te kunnen opvangen.

Bouwplaats foto's

  • December 2025 Raammontage + houtbouwwanden

    Windows
    Windows
    Wandschijf
    Wandschijf
    Interieur
    Interieur
    Klaslokaal
    Klaslokaal
    Interieur
    Interieur
    Windows
    Windows
    Gevel
    Gevel


  • December 2025 Video Bouw van houten panelen

    Een Instagram video van de stad Aken opent hier.
    Een Instagram video van de stad Aken opent hier.
  • November 2025

    De buitenmuren werden in de eerste bouwfase opgetrokken en voorzien van de dakbalken.
    De buitenmuren werden in de eerste bouwfase opgetrokken en voorzien van de dakbalken.
    Klaslokaal met dakbalken
    Klaslokaal met dakbalken
    Klaslokaal en gang met dakbalken
    Klaslokaal en gang met dakbalken
    Lager van de dakbalken
    Lager van de dakbalken
    Nieuwe trap gemaakt van prefab betonnen elementen met een totaalgewicht van ongeveer zes ton
    Nieuwe trap gemaakt van prefab betonnen elementen met een totaalgewicht van ongeveer zes ton
    De houten paneelwanden worden opgetrokken.
    De houten paneelwanden worden opgetrokken.
    De gevel aan de binnenplaats is voltooid.
    De gevel aan de binnenplaats is voltooid.
    Er worden extra steunen en balken geïnstalleerd.
    Er worden extra steunen en balken geïnstalleerd.
    Houten paneelmuren worden opgetrokken.
    Houten paneelmuren worden opgetrokken.
    Nieuw plafond boven de begane grond en betimmerde muren
    Nieuw plafond boven de begane grond en betimmerde muren
    Opslag van de houten paneelwanden
    Opslag van de houten paneelwanden
  • Oktober 2025

    De houten constructie voor de lerarenkamer werd gebouwd.
    De houten constructie voor de lerarenkamer werd gebouwd.
    Houten constructie in de nieuwe personeelskamer
    Houten constructie in de nieuwe personeelskamer
    Zicht op de nieuwe personeelskamer vanaf de binnenplaats
    Zicht op de nieuwe personeelskamer vanaf de binnenplaats
    Het plafond boven de nieuwe lerarenkamer is opgetrokken.
    Het plafond boven de nieuwe lerarenkamer is opgetrokken.
    De steigers voor de uitbreiding zijn geplaatst. Het geeft een eerste indruk van de nieuwe kubus.
    De steigers voor de uitbreiding zijn geplaatst. Het geeft een eerste indruk van de nieuwe kubus.
    De gesloopte lerarenkamer wordt herbouwd.
    De gesloopte lerarenkamer wordt herbouwd.
    De vloer voor de nieuwe personeelsruimte is gestort.
    De vloer voor de nieuwe personeelsruimte is gestort.
    Begin van de bouw van de lift
    Begin van de bouw van de lift
    Voltooiing van een van de biologielokalen op de begane grond
    Voltooiing van een van de biologielokalen op de begane grond
    Het voltooide biologielokaal, met de mobiele tafels en de vaste werkkolommen.
    Het voltooide biologielokaal, met de mobiele tafels en de vaste werkkolommen.
    De linkerfoto toont de biologieverzameling, de rechterfoto toont de voorbereidingsruimte
    De linkerfoto toont de biologieverzameling, de rechterfoto toont de voorbereidingsruimte


  • Juli 2025

    De sloopwerkzaamheden vorderen en na het slopen van delen van het composiet thermische isolatiesysteem is de oorspronkelijke blauwe tegelgevel blootgelegd.
    De sloopwerkzaamheden vorderen en na het slopen van delen van het composiet thermische isolatiesysteem is de oorspronkelijke blauwe tegelgevel blootgelegd.
    Het nooddak en de "sloopwonden" op de bestaande kubus zijn te zien.
    Het nooddak en de "sloopwonden" op de bestaande kubus zijn te zien.
    De lerarenkamer is gesloopt.
    De lerarenkamer is gesloopt.
    Verder sloopwerk
    Verder sloopwerk


  • Mei 2025

    De sloop van het dubbele dak is aan de gang ter voorbereiding op de uitbreiding.
    De sloop van het dubbele dak is aan de gang ter voorbereiding op de uitbreiding.
    Het werk aan het dak is begonnen.
    Het werk aan de noodafdichting is begonnen.
    De isolatiepanelen werden geïnstalleerd.
    De droge muren zijn geplaatst.
    Het pleisterwerk is voltooid.
    Het pleisterwerk is voltooid en de basisinstallatie is uitgevoerd.
    De dakbedekking is verwijderd.
    Zodra de vervuilende stoffen zijn verwijderd en het gips is verwijderd, wordt het teruggeplaatst.
    De belastingoverdrachtsprofielen op de begane grond werden geïnstalleerd.
    De belastingoverdrachtsprofielen op de begane grond werden geïnstalleerd en de metselwerkmuren werden gezet.
  • Januari 2025

    Het bouwbord is geplaatst
    Het bouwbord is geplaatst
    Bioruimte op de begane grond
    Bio-kamer op de begane grond
    Het werk begon met het opknappen van de biologielokalen en het verstevigen van de constructie op de begane grond.
    Het werk begon met het opknappen van de biologielokalen en het verstevigen van de constructie op de begane grond.
  • December 2024

    Chemische renovatie UG
    Opknappen van chemische kelder
    De voorbereidende renovatie van de scheikundelokalen in de kelder is voltooid.
    De voorbereidende renovatie van de scheikundelokalen in de kelder is voltooid.
  • Oktober 2023 Voorlopige maatregelen

    Voorbereidende maatregelen zoals het strippen van de scheikundelokalen in de kelder zijn in gang gezet.
    Voorbereidende maatregelen zoals het strippen van de chemische ruimtes in de kelder zijn in gang gezet.

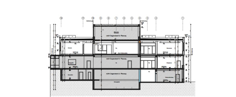
Beschrijving van de

Ontwerp en gevel:
Een gebouw van één verdieping met dezelfde afmetingen wordt bovenop de bestaande vleugel voor administratie en speciale klaslokalen gebouwd.

De uitbreiding is een houten constructie. De nieuwe gevel steekt iets boven het bestaande gebouw uit en bestaat afwisselend uit verticale basis- en bovenbekisting en horizontale tand- en groefbekisting. Het hout is voorvergrijsd.

Ramen van hout-aluminium vormen een lintgevel met lichtgekleurde blinde panelen die tot leven komen met de sculpturale houten gevelbekleding. Aan de buitenkant zijn jaloezieën geïnstalleerd en de muren zijn gemaakt van houten panelen.

De bestaande gevels zijn ontworpen als banden over de hele breedte van het gebouw en afgewerkt met lichtgrijze ETICS. De twee gebieden onderscheiden zich van elkaar door hun verschillende ontwerp.

Plattegrond en interieurontwerp:
De uitbreiding is toegankelijk vanuit de vleugel met klaslokalen. Een ronde gang omringt een groot leercentrum, de binnenplaats en twee differentiatielokalen. De andere ruimtes zijn naar buiten gericht.
Een andere differentiatieruimte bevindt zich tussen het nieuwe trappenhuis en het leercentrum met uitzicht op de kantine.

De plattegrond is opgedeeld in drie brandcompartimenten om veel houtzichtbare oppervlakken mogelijk te maken.

Met uitzondering van de technische ruimtes krijgen alle ruimtes verlaagde plafonds met akoestische effectiviteit. De achterwanden van klaslokalen en cursusruimtes worden voorzien van geluidsabsorberende bekleding in de vorm van houten lamellenwanden.

Het interieurperspectief geeft een indruk van de zichtbare houten oppervlakken.
Het interieurperspectief geeft een indruk van de zichtbare houten oppervlakken.


Energieconcept

Duurzaamheid speelt een steeds belangrijkere rol in de bouwprojecten van de stad Aken. De voorbeeldfunctie als eigenaar van openbare gebouwen, de wens naar gezonde gebouwen en een zuinige en ecologische exploitatie gedurende de hele levensduur leiden tot eisen die veel verder gaan dan die van een energiezuinig gebouw.
Planning moet daarom gebaseerd zijn op de volgende beoordelingscriteria:

  • Ecologische kwaliteit
  • Economische kwaliteit
  • Sociaal-culturele kwaliteit
  • Technische kwaliteit
  • Proceskwaliteit
  • Locatiekenmerken

De uitbreiding is gebaseerd op de principes van toekomstgericht bouwen.

Hulp met toegankelijkheid

  • Algemeen

    We streven ernaar onze website toegankelijk te maken. Details hierover vind je in onze toegankelijkheidsverklaring. Je kunt ons suggesties voor verbetering sturen via ons"Meld een belemmering" feedbackformulier.

  • Lettergrootte

    Gebruik de volgende toetsencombinaties om de lettergrootte aan te passen:

    Groter

    ⌘commando
    +

    Kleiner

    ⌘commando

    Groter

    Ctrl
    +

    Kleiner

    Ctrl
  • Toetsenbordnavigatie

    Gebruik TAB en SHIFT + TAB om door volgende/vorige links, formulierelementen en knoppen te navigeren.

    Gebruik ENTER om links te openen en met elementen te werken.

  • Contrast modus

    Druk op de volgende toetsencombinatie om het contrast te verlagen of te verhogen:

    Vergroten

    Controle
    Optie
    ⌘commando
    .

    Afname

    Controle
    Optie
    ⌘commando
    ,
    Opmerking: De snelkoppelingen moeten geactiveerd zijn in de systeeminstellingen van het besturingssysteem.

    Druk op links ALT + links SHIFT + PRINT om de hoogcontrastmodus snel in of uit te schakelen.

  • Kleuren omkeren

    Druk op de volgende toetsencombinatie om de kleurinversie in en uit te schakelen:

    Controle
    Optie
    ⌘commando
    8
    Opmerking: De snelkoppelingen moeten geactiveerd zijn in de systeeminstellingen van het besturingssysteem.

    Activeer eerst het schermvergrootglas en schakel dan de kleurinversie in en uit met de volgende toetscombinaties:

    1. beeldschermloep

    +

    2. kleuren omkeren

    Ctrl
    Oud
    I
  • Schermloep

    Druk op de volgende toetsencombinaties om het schermvergrootglas te gebruiken:

    In-/uitschakelen

    Optie
    ⌘commando
    8

    Vergroten

    Optie
    ⌘commando
    =

    Uitzoomen

    Optie
    ⌘commando
    Opmerking: De snelkoppelingen moeten geactiveerd zijn in de systeeminstellingen van het besturingssysteem.

    Aanzetten / Weergave vergroten

    +

    Uitzoomen