Diese Seite wurde automatisch übersetzt. Es kann daher zu Abweichungen oder Ungenauigkeiten im Text kommen. Verbindlich ist ausschließlich die Originalfassung. Rechtsansprüche aus Inhalten der übersetzten Version sind ausgeschlossen.
Extension et rénovation Rhein-Maas-Gymnasium 2025
G8-G9 Augmentation et rénovation des salles de sciences naturelles
Actualité : Photos de chantier novembre 2025
Cause et objectif
Le passage de G8 à G9 entraîne un besoin d'espace supplémentaire pour environ 930 élèves.
Surélévation d'un étage de l'aile administrative NW
Nouvelles salles : 4 salles de classe, 1 salle de classe de remplacement, 3 salles de cours, 2 salles de différenciation, 1 salle multifonctionnelle, centre d'apprentissage ouvert
Rénovation au rez-de-chaussée : salles de biologie (2 salles de classe, collection, préparation) Rénovation de la salle des professeurs en raison de la structure du toit
Accès sans barrière à tous les étages grâce à l'installation d'un ascenseur
Installation photovoltaïque sur le toit
Construction en panneaux de bois, bois transparent à l'intérieur comme à l'extérieur
Parois arrière absorbant le son
Surface nette des locaux : étage nouveau 1 050 m², rez-de-chaussée rénovation 375 m².
En 2018, le parlement du Land de Rhénanie-du-Nord-Westphalie a adopté la 13e loi sur la modification du droit scolaire et a redéfini la durée des cursus de l'enseignement secondaire inférieur. Les lycées de la Rhénanie-du-Nord-Westphalie ont ainsi été libres d'organiser à l'avenir l'examen du baccalauréat après huit ou neuf années scolaires. Lors de cette décision unique, les huit lycées municipaux d'Aix-la-Chapelle ont opté pour un passage à 9 ans (G9).
Le département Enfants, Jeunesse et Ecole (FB 45) estime actuellement qu'environ 930 élèves (SuS) supplémentaires seront ainsi scolarisés dans les lycées d'Aix-la-Chapelle.
Dans cette optique, tous les lycées municipaux ont été examinés. Dans un premier temps, quatre lycées seront agrandis par des mesures de construction afin de pouvoir accueillir le nombre accru d'élèves prévu.
La démolition progresse et met à jour la façade originale en carreaux bleus après la démolition des surfaces partielles du système composite d'isolation thermique.
On peut voir le toit de secours, ainsi que les "blessures de démolition" sur le cubage existant.
Des mesures préliminaires sont en cours, comme le désencombrement des salles de chimie au sous-sol.
Description
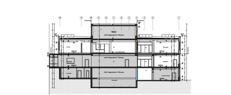
Design et façade : Sur le corps existant de l'aile administrative et de la classe spéciale, un corps d'un seul étage de mêmes dimensions est placé.
La surélévation est réalisée en construction bois. La nouvelle façade dépasse légèrement de l'existant et alterne entre un coffrage vertical du sol et du couvercle et un coffrage horizontal à rainures et languettes. Le bois est pré-grisé.
Les fenêtres en bois-aluminium forment une façade en bande avec des panneaux aveugles clairs qui vivent grâce au revêtement plastique en bois. Des stores extérieurs sont installés, les murs sont construits en panneaux de bois.
Les façades existantes sont conçues comme des bandes sur toute la largeur du bâtiment et sont recouvertes d'une ITE gris clair. Les deux zones se distinguent l'une de l'autre par leur design différent.
Plan et aménagement intérieur : L'extension est accessible depuis l'aile de la classe principale. Un couloir en forme d'anneau entoure un grand centre d'apprentissage, la cour intérieure, ainsi que deux salles de différenciation. Les autres salles s'orientent vers l'extérieur. Une autre salle de différenciation se trouve entre la nouvelle cage d'escalier et le centre d'apprentissage, avec vue sur le réfectoire.
Le plan d'étage est divisé en trois sections de feu afin de permettre de nombreuses surfaces transparentes au bois.
A l'exception des salles techniques, toutes les pièces auront des plafonds suspendus avec une efficacité acoustique. Les salles de classe et de cours seront équipées de panneaux de parement absorbant le son sur le mur du fond, sous forme de mur en lamelles de bois.
La perspective intérieure donne une impression des surfaces en bois visibles.
Concept énergétique
Pour les projets de construction de la ville d'Aix-la-Chapelle, la durabilité joue un rôle de plus en plus important. Le rôle de modèle en tant que maître d'ouvrage public, le désir de bâtiments sains, une exploitation économique et écologique pendant toute la durée de vie, conduisent à des exigences qui vont bien au-delà de celles d'un bâtiment à haute efficacité énergétique. La planification doit donc s'orienter vers ces critères d'évaluation suivants :
Qualité écologique
Qualité économique
Qualité socioculturelle
Qualité technique
Qualité du processus
Caractéristiques du site
L'extension s'oriente vers les principes de la construction orientée vers l'avenir.