Erweiterung und Sanierung
Rhein-Maas-Gymnasium 2026

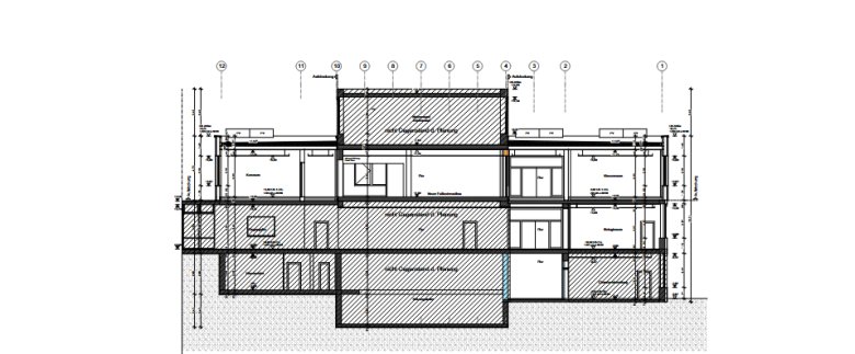
G8-G9 Aufstockung und Sanierung Naturwissenschaftsräume

Aktuell: Baustellenfotos Februar 2026

Im Zeitbalken der Projektphasen befindet sich dieses Projekt in der Bauphase.
0715-RMG-Perspektive Schulhof


Anlass und Ziel

Durch die Umstellung von G8 auf G9 entsteht zusätzlicher Raumbedarf für rund 930 Schülerinnen und Schüler.

  • Eckdaten

    • Aufstockung des Verwaltungs-NW-Trakts um ein Geschoss
    • Neue Räume: 4 Klassenräume, 1 Ersatzklassenraum, 3 Kursräume, 2 Differenzierungsräume, 1 Multifunktionsraum, offenes Lernzentrum
    • Sanierung im Erdgeschoss: Biologieräume (2 Unterrichtsräume, Sammlung, Vorbereitung) Sanierung des Lehrerzimmers aufgrund der Dachkonstruktion
    • Barrierefreie Erschließung aller Geschosse durch Aufzuginstallation 
    • Photovoltaikanlage auf dem Dach
    • Holztafelbauweise, innen wie außen holzsichtig
    • Schallabsorbierende Rückwände
    • Netto-Raumfläche: OG neu 1.050 m², EG Sanierung 375 m²
    • Brutto-Rauminhalt: OG neu 5.080 m³, EG Sanierung 1.770 m³
    • Vorabmaßnahme: Sanierung Untergeschoss, abgeschlossen in 2024
    • Architekten: Hahn Helten Planungs GmbH
    • Ausführungsstart: Juli 2024
    • voraussichtlicher Fertigstellungstermin: Juni 2026
  • Rechtsgrundlage

    2018 wurde vom Landtag NRW das 13. Schulrechtsänderungsgesetz verabschiedet und die Dauer der Bildungsgänge in der Sekundarstufe I neu geregelt. Den Gymnasien in NRW wurde damit freigestellt, die Abiturprüfung zukünftig nach acht oder nach neun Schuljahren durchzuführen. Bei dieser einmaligen Entscheidung haben alle acht städtischen Gymnasien in Aachen sich für eine Umstellung auf 9 Jahre (G9) entschieden. 

    Der Fachbereich Kinder, Jugend und Schule (FB 45) geht derzeit von ca. 930 Schülerinnen und Schüler (SuS) aus, die dadurch zusätzlich an den Gymnasien in Aachen beschult werden.

    Unter diesen Gesichtspunkten wurden alle städtischen Gymnasien untersucht. In einem ersten Schritt werden vier Gymnasien durch bauliche Maßnahmen räumlich erweitert, um die zu erwartende erhöhte Schülerzahl aufnehmen zu können.

Baustellenfotos

  • Februar 2026       Fassade + Aufzug + Rohinstallation

    Die Fassade im Detail und im Innenhof
    Die Fassade im Detail und im Innenhof
    Die Fassaden sind fertiggestellt.
    Die Fassaden sind fertiggestellt.
    Die Rohinstallation wird erstellt.
    Die Rohinstallation wird erstellt.
    Die Arbeiten am Aufzug schreiten voran.
    Die Arbeiten am Aufzug schreiten voran.
  • Dezember 2025     Fenstereinbau + Holzbauwände

    Fenster
    Fenster
    Wandscheibe
    Wandscheibe
    Innenraum
    Innenraum
    Klassenraum
    Klassenraum
    Innenraum
    Innenraum
    Fenster
    Fenster
    Fassade
    Fassade


  • Dezember 2025 Video Holztafelbau

    Hier öffnet sich ein Instagram-Video der Stadt Aachen.
    Hier öffnet sich ein Instagram-Video der Stadt Aachen.
  • November 2025

    Die Außenwände wurden im ersten Bauabschnitt errichtet und mit der Dachbalkenlage versehen.
    Die Außenwände wurden im ersten Bauabschnitt errichtet und mit der Dachbalkenlage versehen.
    Klassenraum mit Dachbalkenlage
    Klassenraum mit Dachbalkenlage
    Klassenraum und Flurbereich mit Dachbalkenlage
    Klassenraum und Flurbereich mit Dachbalkenlage
    Lager der Dachbalken
    Lager der Dachbalken
    Neue Treppe aus Betonfertigteilen mit ca. sechs Tonnen Gesamtgewicht
    Neue Treppe aus Betonfertigteilen mit ca. sechs Tonnen Gesamtgewicht
    Die Holztafelwände werden errichtet.
    Die Holztafelwände werden errichtet.
    Die Fassade zum Innenhof steht.
    Die Fassade zum Innenhof steht.
    Zusätzliche Stützen und Träger werden eingebaut.
    Zusätzliche Stützen und Träger werden eingebaut.
    Holztafelwände werden errichtet.
    Holztafelwände werden errichtet.
    Neue Decke über dem Erdgeschoss und Tafelwände
    Neue Decke über dem Erdgeschoss und Tafelwände
    Lager der Holztafelwände
    Lager der Holztafelwände
  • Oktober 2025

    Die Holzkonstruktion für das Lehrerzimmer wurde errichtet.
    Die Holzkonstruktion für das Lehrerzimmer wurde errichtet.
    Holzkonstruktion im neuen Lehrerzimmer
    Holzkonstruktion im neuen Lehrerzimmer
    Blick vom Hof auf das neue Lehrerzimmer
    Blick vom Hof auf das neue Lehrerzimmer
    Die Decke über dem neuen Lehrerzimmer wurde errichtet.
    Die Decke über dem neuen Lehrerzimmer wurde errichtet.
    Das Gerüst für die Aufstockung wurde aufgestellt. Es gibt einen ersten Eindruck der neuen Kubatur wieder.
    Das Gerüst für die Aufstockung wurde aufgestellt. Es gibt einen ersten Eindruck der neuen Kubatur wieder.
    Das abgerissene Lehrerzimmer wird neu errichtet.
    Das abgerissene Lehrerzimmer wird neu errichtet.
    Die Bodenplatte für das neue Lehrerzimmer wird gegossen.
    Die Bodenplatte für das neue Lehrerzimmer wird gegossen.
    Beginn der Aufzugsbaustelle
    Beginn der Aufzugsbaustelle
    Fertigstellung einer der Biologieräume im Erdgeschoss
    Fertigstellung einer der Biologieräume im Erdgeschoss
    Der fertiggestellte Biologieraum, zu sehen sind die mobilen Tische und die feststehenden Arbeitssäulen.
    Der fertiggestellte Biologieraum, zu sehen sind die mobilen Tische und die feststehenden Arbeitssäulen. 
    Im linken Bild die Biologiesammlung, im rechten Bild der Vorbereitungsbereich
    Im linken Bild die Biologiesammlung, im rechten Bild der Vorbereitungsbereich


  • Juli 2025

    Der Abbruch schreitet voran und legt nach Abbruch der Teilflächen des Wärmedämmverbundsystems die ursprüngliche blaue Kachelfassade frei.
    Der Abbruch schreitet voran und legt nach Abbruch der Teilflächen des Wärmedämmverbundsystems die ursprüngliche blaue Kachelfassade frei.
    Zu sehen sind das Notdach, sowie die "Abrisswunden" an der Bestands-Kubatur.
    Zu sehen sind das Notdach, sowie die "Abrisswunden" an der Bestands-Kubatur.
    Das Lehrerzimmer wird abgerissen.
    Das Lehrerzimmer wird abgerissen.
    Weitere Abbrucharbeiten
    Weitere Abbrucharbeiten


  • Mai 2025

    Der Abbruch des Doppeldaches ist im Gange als Vorbereitung für die Aufstockung.
    Der Abbruch des Doppeldaches ist im Gange als Vorbereitung für die Aufstockung.
    Die Arbeiten auf dem Dach haben begonnen.
    Die Arbeiten an der Notabdichtung haben begonnen.
    Die Dämmplatten wurden montiert.
    Die Trockenbauwände sind erstellt.
    Die Verputzarbeiten sind abgeschlossen.
    Die Verputzarbeiten sind abgeschlossen, die Rohinstallation ist erfolgt.
    Der Dachbelag wird  abgetragen.
    Nach der Schadstoffsanierung und abgetragenen Putzen werden diese erneuert.
    Die Lastabtragungsprofile im EG wurden eingebaut.
    Die Lastabtragungsprofile im EG wurden eingebaut, die Mauerwerkswände wurden gesetzt.
  • Januar 2025

    Das Bauschild wurde aufgestellt
    Das Bauschild wurde aufgestellt
    EG Bioraum
    Bioraum im Erdgeschoss
    Mit der Sanierung der Biologieräume und statischen Ertüchtigung im EG wurde begonnen.
    Mit der Sanierung der Biologieräume und statischen Ertüchtigung im EG wurde begonnen.
  • Dezember 2024

    Sanierung Chemie UG
    Sanierung Chemie Untergeschoss
    Die Vorabmaßnahme der Sanierung der Chemieräume im UG ist abgeschlossen.
    Die Vorabmaßnahme der Sanierung der Chemieräume im UG ist abgeschlossen.
  • Oktober 2023 Vorabmaßnahmen

    Vorabmaßnahme wie die Entkernung der Chemieräume im UG laufen.
    Vorabmaßnahme wie die Entkernung der Chemieräume im Untergeschoss laufen.

Beschreibung

Gestaltung und Fassade:
Auf dem Bestandskörper des Verwaltungs-und Spezialklassentraktes wird ein eingeschossiger Körper mit gleichen Ausmaßen gesetzt.

Die Aufstockung erfolgt im Holzbau. Die neue Fassade steht leicht über den Bestand hervor und wechselt zwischen vertikaler Boden- und Deckelschalung und horizontaler Nut- und Federschalung. Das Holz wird vorvergraut. 

Holz-Aluminiumfenster bilden eine Bandfassade mit hellen Blindpaneelen, die von der plastischen Holzverkleidung leben. Außenjalousien werden eingebaut, die Wände in Holztafelbauweise errichtet.

Die Bestandsfassaden sind als Bänder über die gesamte Gebäudebreite gestaltet und mit hellgrauem WDVS versehen. Die beiden Bereiche setzen sich durch die unterschiedliche Gestaltung voneinander ab. 

Grundriss und Innenausstattung:
Die Erweiterung wird vom Stammklassentrakt aus erschlossen. Ein ringförmiger Flur umschließt ein großes Lernzentrum, den Innenhof, sowie zwei Differenzierungsräume. Die weiteren Räume orientieren sich nach außen.
Ein weiterer Differenzierungsraum liegt mit Blick zur Mensa zwischen neuem Treppenhaus und Lernzentrum. 

Der Grundriss ist in drei Brandabschnitte gegliedert, um viele holzsichtige Oberflächen zu ermöglichen. 

Bis auf die Technikräume erhalten alle Räume abgehängte Decken mit akustischer Wirksamkeit. Klassen- und Kursräume werden an der Rückwand mit schallabsorbierenden Vorsatzschalen als Holzlamellenwand  ausgestattet.

Die Innenraumperspektive gibt einen Eindruck der sichtbaren Holzoberflächen.
Die Innenraumperspektive gibt einen Eindruck der sichtbaren Holzoberflächen.


Energetisches Konzept

Für die Baumaßnahmen der Stadt Aachen spielt Nachhaltigkeit eine immer bedeutendere Rolle. Vorbildfunktion als öffentlicher Bauherr, der Wunsch nach gesunden Gebäuden, ein ökonomischer und ökologischer Betrieb über die gesamte Lebensdauer, führen zu Anforderungen, die weit über die eines energieeffizienten Gebäudes hinausgehen.
Die Planung soll sich daher sich diese an folgenden Bewertungskriterien orientieren:

  • Ökologische Qualität
  • Ökonomische Qualitä
  • Soziokulturelle Qualität
  • Technische Qualität
  • Prozessqualität
  • Standortmerkmale

Die Erweiterung orientiert sich an den Prinzipien des zukunftsorientierten Bauen.

Hilfe zur Barrierefreiheit

  • Allgemein

    Wir sind bemüht, unsere Webseiten barrierefrei zugänglich zu gestalten. Details hierzu finden Sie in unserer Erklärung zur Barrierefreiheit. Verbesserungsvorschläge können Sie uns über unser Feedback-Formular "Barriere melden" zukommen lassen.

  • Schriftgröße

    Um die Schriftgröße anzupassen, verwenden Sie bitte folgende Tastenkombinationen:

    Größer

    command
    +

    Kleiner

    command

    Größer

    Strg
    +

    Kleiner

    Strg
  • Tastaturnavigation

    Verwenden Sie TAB und SHIFT + TAB, um durch nächste / vorherige Links, Formularelemente und Schaltflächen zu navigieren.

    Verwenden Sie ENTER, um Links zu öffnen und mit Elementen zu interagieren.

  • Kontrastmodus

    Drücken Sie die folgende Tastenkombination, um den Kontrast zu verringern bzw. zu vergrößern:

    Vergrößern

    control
    option
    command
    .

    Verringern

    control
    option
    command
    ,
    Hinweis: Die Kurzbefehle müssen in den Systemeinstellungen des Betriebssystems aktiviert sein.

    Drücken Sie die linke ALT-TASTE + linke UMSCHALTTASTE + DRUCK, um den Modus für hohen Kontrast schnell ein- oder auszuschalten.

  • Farben umkehren

    Drücken Sie folgende Tastenkombination, um die Farbumkehrung ein- und auszuschalten:

    control
    option
    command
    8
    Hinweis: Die Kurzbefehle müssen in den Systemeinstellungen des Betriebssystems aktiviert sein.

    Aktivieren Sie zuerst die Bildschirmlupe und schalten Sie dann die Farbumkehrung mit folgenden Tastenkombinationen ein und aus:

    1. Bildschirmlupe

    +

    2. Farben umkehren

    Strg
    Alt
    I
  • Bildschirmlupe

    Drücken sie folgende Tastenkombinationen, um die Bildschirmlupe zu verwenden:

    Ein-/ausschalten

    option
    command
    8

    Ansicht vergrößern

    option
    command
    =

    Ansicht verkleinern

    option
    command
    Hinweis: Die Kurzbefehle müssen in den Systemeinstellungen des Betriebssystems aktiviert sein.

    Einschalten / Ansicht vergrößern

    +

    Ansicht verkleinern