Neubau Freibadgebäude Hangeweiher

Neubau mit Umkleiden, Sanitäranlagen, Büro-, Sozial- und Wohnräumen

Aktuell: Baustellenfotos Februar 2026

Im Zeitbalken der Projektphasen befindet sich dieses Projekt in der Bauphase.
Perspektive Neubau Freibadgebäude


Anlass und Ziel

Das Freibad Hangeweiher ist das einzige Freibad in Aachen und Umgebung und stellt eine unverzichtbare Freizeiteinrichtung für die Stadt Aachen dar. Um den Fortbestand des veralteten Freibades zu sichern, wurden bereits die Beckenanlagen und die dazugehörige Bädertechnik im 1. und 2. Bauabschnitt saniert.

Das bestehende Freibadgebäude war ein überdimensionierter Gebäudekomplex, der diverse, nicht unerhebliche bauliche und strukturelle Mängel aufwies. Zur vollständigen Umwandlung in ein modernes, den heutigen Anforderungen entsprechendes Freibad, wird nach erfolgter Schadstoffsanierung und Rückbau des Altbaus ein Ersatzneubau einschließlich eines neuen Zugangs- und Kassenbereichs errichtet.

  • Eckdaten

    • Ausführungsbeginn 2023
    • Voraussichtliche Fertigstellung: 2026
    • Netto-Raumfläche: ca. 1030m²
    • Nutzfläche: ca. 550m²
    • Brutto-Rauminhalt: ca. 2.900m³ (zum Vergleich Altbau: 5.700m³)
    • Architekt*innen: Kaiser Schweitzer Architekten

Baustellenfotos

  • Februar 2026      Montage Photovoltaik-Dach      

    Luftbild mit Dachwelle
    Luftbild mit Dachwelle


    Wartungsstege
    Wartungsstege
    Die ersten Photovoltaik-Module werden montiert.
    Die ersten Photovoltaik-Module werden montiert.
    Die Unterkonstruktion der Photovoltaikelemente
    Die Unterkonstruktion der Photovoltaikelemente


  • Januar 2026      Beginn Montage Energie-Dach

    Das Dach nimmt Formen an.
    Das Dach nimmt Formen an.
    Stahlbauteile liegen zum Einbau bereit und warte auf ihre Positionierung mittels Kran.
    Stahlbauteile liegen zum Einbau bereit und warte auf ihre Positionierung mittels Kran.
    Das Raumgerüst zur Montage des Energiedaches wurde aufgestellt.
    Das Raumgerüst zur Montage des Energiedaches wurde aufgestellt.


  • Dezember 2025       Betonarbeiten +  Fensteranlage Kassenhaus

    Vorbereitungen für die letzte Betonarbeiten
    Vorbereitungen für die letzte Betonarbeiten
    Die letzten Betonarbeiten wurden ausgeführt.
    Die letzten Betonarbeiten wurden ausgeführt.
    Die letzten Betonarbeiten wurden ausgeschalt.
    Die letzten Betonarbeiten wurden ausgeschalt.
    Die Fensteranlage am Kassenhäuschen wurde montiert...
    Die Fensteranlage am Kassenhaus wurde montiert...
    ...sicherheitshalber noch ohne Glas.
    ...sicherheitshalber noch ohne Glas.



  • November 2025     Frischluftumkleiden + Bodenaustausch + Installationen 

    Fertiginstallation der Leuchten in den Warmumkleiden
    Fertiginstallation der Leuchten in den Warmumkleiden
    Fertiginstallation der Leuchten in den WC-Anlagen
    Fertiginstallation der Leuchten in den WC-Anlagen
    Fertiginstallation in den Duschen
    Fertiginstallation in den Duschen
    Der Bodenaustausch im Bereich der Interimsgebäude ist abgeschlossen.
    Der Bodenaustausch im Bereich der Interimsgebäude ist abgeschlossen.
    Betonierarbeiten der Frischluftumkleiden
    Betonierarbeiten der Frischluftumkleiden
    Betonierarbeiten der Frischluftumkleiden
    Betonierarbeiten der Frischluftumkleiden
    Betonierarbeiten der Frischluftumkleiden
    Betonierarbeiten der Frischluftumkleiden


  • Oktober 2025     Rückbau Interims-Container

    Eine neue Perspektive auf das neue Hauptgebäude nach dem Rückbau der Interims-Container
    Eine neue Perspektive auf das neue Hauptgebäude nach dem Rückbau der Interims-Container
    Eine neue Perspektive auf das neue Hauptgebäude nach dem Rückbau der Interims-Container
    Eine neue Perspektive auf das neue Hauptgebäude nach dem Rückbau der Interims-Container
    Die letzten beiden Container
    Die letzten beiden Container
    Abfahrt zum neuen Einsatzort
    Abfahrt zum neuen Einsatzort
    Absetzen der Container in räumlicher Enge
    Absetzen der Container in räumlicher Enge
    Badleiterbüro im Anflug...
    Schwimmeisterbüro im Anflug...
    Der Rückbau beginnt.
    Der Rückbau beginnt.
    Der Abstransport der Container wird vorbereitet.
    Der Abstransport der Container wird vorbereitet.
    Vorbereitungen für die Demontage der Container
    Vorbereitungen für die Demontage der Container
    Zahlreiche Besucher
    Zahlreiche Besucher...
  • September 2025     Rückbau + Fliesen + Fertigstellung Personalbereich

    Der Blick auf den Neubau ist frei, der Holzzaun wurde zurückgebaut.
    Der Blick auf den Neubau ist frei, der Holzzaun wurde zurückgebaut.
    Wandlfiesen im Damen-WC
    Wandfliesen im Damen-WC
    Wandfliesen im Flur
    Wandfliesen im Flur
    Der Personalraum kurz vor der Fertigstellung und rechts im Bild die Bauendreinigung im Personalbereich.
    Der Personalraum kurz vor der Fertigstellung und rechts im Bild die Bauendreinigung im Personalbereich.
    Abbruch des alten Kassenhäuschens
    Abbruch des alten Kassenhäuschens
    Abbruch des alten Kassenhäuschens
    Abbruch des alten Kassenhäuschens
    Das alte und das neue Kassenhaus, ohne den trennenden Holzzaun.
    Das alte und das neue Kassenhaus, ohne den trennenden Holzzaun.
  • August 2025     Fliesen + Pflaster

    Die Fliesenarbeiten schreiten voran.
    Fliesenarbeiten
    Fliesenarbeiten an Wänden und Böden
    Fliesenarbeiten an Wänden und Böden
    Die Fliesenarbeiten schreiten voran, hier sind die Abdichtungsarbeiten zu sehen.
    Abdichtungsarbeiten im öffentlichen WC
    Die Pflasterarbeiten schreiten voran.
    Beginn Pflasterarbeiten freibadseitig


  • Juli 2025     Kassenhaus + Außenanlagen + Fliesen 

    Kassenhaus ausgeschalt
    Kassenhaus ausgeschalt
    Beginn Außenanlagenarbeiten Freibadseite
    Beginn Außenanlagenarbeiten Freibadseite
    Unterbau für Pflasterarbeiten vor Personal- und Lagerbereich
    Unterbau für Pflasterarbeiten vor Personal- und Lagerbereich
    Die Abdichtung vor Fliesenarbeiten in Duschen der Damen wird eingebracht.
    Die Abdichtung in Duschen der Damen wurde fertiggestellt.
    Abdichtungsarbeiten Duschen Herren
    Abdichtungsarbeiten Duschen Herren
    Die ersten Fliesen im Personalbereich
    Die ersten Fliesen im Personalbereich


  • Juni 2025     Holzfassade + Abhangdecken + Kassenhaus

    Die Ansicht vom Freibad aus, das Gerüst wurde bereits rückgebaut.
    Die Ansicht vom Freibad aus, das Gerüst wurde bereits rückgebaut.
    Die Holzfassade an der Freibadseite wurde fertiggestellt und das Gerüst abgebaut.
    Die Holzfassade an der Freibadseite wurde fertiggestellt und das Gerüst abgebaut.
    Die Abhangdecke und die Wandistallationen im Damen-WC
    Montage Abhangdecke mit technische Installationen im WC Damen
    Links im Bild der Technikraum, rechts die Abhangdecke im Personalbereich. 
    Links im Bild der Technikraum, rechts  Montage Abhangdecke mit technische Installationen im Personalbereich
    Das ovale Kassenhaus, eine meisterliche Handwerksleistung.
    Rohbau ovales Kassenhaus - eine handwerkliche Meisterleistung
    Der Rohbau des ovalen Kassenhauses.
    Der Rohbau des ovalen Kassenhauses.


  • Mai 2025     Tore + Technik + Kassenhaus + Holzfassade

    Baustellen- und Freibadbetrieb lauf parallel.
    Baustellen- und Freibadbetrieb laufen parallel.
    Die neuen Tore zum Park wurden eingebaut.
    Die neuen Tore zum Park wurden eingebaut.
    Gespachtelte Wände und Technikeinbauten unter der Decke
    Gespachtelte Wände und Technikeinbauten unter der Decke
    Das Mauerwerk des gerundeten Grundrisses des Kassenhäuschens ist fertiggestellt.
    Das Mauerwerk des ovalen Kassenhäuses ist fertiggestellt.
    Die Mauerwerksarbeiten am Kassenhäuschen schreiten voran... 
    Die Mauerwerksarbeiten am Kassenhäuschen schreiten voran... 
    Arbeiten an der Holzfassade
    Arbeiten an der Holzfassade


  • März 2025 Putzarbeiten

    Die Vorarbeiten für die Putzarbeiten im Duschbereich sind erfolgt.
    Die Vorarbeiten für die Putzarbeiten im Duschbereich sind erfolgt.
    Das Bild zeigt Vorarbeiten für den Putz im Flurbereich sowie erfolgte Putzarbeiten im Personalraum.
    Das Bild zeigt Vorarbeiten für den Putz im Flurbereich sowie erfolgte Putzarbeiten im Personalraum.


  • Dezember 2024 Gründach + Ausbau Wohnung

    Die Substratschicht des Gründaches wurde erstellt.
    Die Substratschicht des Gründaches wurde erstellt.
    Der Estrich in der Wohnung wurde eingebracht.
    Der Estrich in der Wohnung wurde eingebracht.
  • April 2025     Baubeginn Kassenhaus + Fertigstellung Dienstwohnung

    Rohbauarbeiten für das Kassenhaus
    Rohbauarbeiten für das Kassenhaus
    Die Dienststellenwohnung wurde fertiggestellt.
    Die Dienststellenwohnung wurde fertiggestellt.
    Die Fußbodenheizung in den WC-Bereichen ist in Arbeit.
    Die Fußbodenheizung in den WC-Bereichen ist in Arbeit.


  • Oktober 2024     Installation + Ausbau

    Die Installationen der Duschen.
    Die Installationen der Duschen.
    Die Trockenbau-Unterkonstruktion in der Wohnung wurde erstellt.
    Die Trockenbau-Unterkonstruktion in der Wohnung wurde erstellt.


  • Juni bis August     2024 Rohbau

    Der Freibadbetrieb läuft trotz Großbaustelle.
    Der Freibadbetrieb läuft trotz Großbaustelle.
    Wände Obergeschoss
    Wände Obergeschoss
    Die Wände EG sind erstellt.
    Die Wände EG sind erstellt.
    Bodenplatte
    Bodenplatte
  • März 2024     Beginn Rohbauarbeiten

    Beginn des Rohbaus
    Beginn des Rohbaus
    Baufeld im Regen
    Baufeld im Regen
  • November 2023     Rückbau

    Sortierung der Abbruchmaterialien
    Sortierung der Abbruchmaterialien
    Rückbauarbeiten mit schwerem Gerät
    Rückbauarbeiten mit schwerem Gerät
  • Bestandsfotos

    Luftbild Bestand
    Luftbild Bestand
    Bestandsbild der Rampenanlage

Konzept

Es wird ein kompakter, nur noch ein- bis zweigeschossiger Neubau errichtet.

Massivbauweise und Gründach:
Das in Massivbauweise errichtete Gebäude mit Holzfassade schmiegt sich - die Gelände-Topographie nutzend - so an den Hang zur Straße, dass das begrünte Dach des Erdgeschosses die Landschaft fortführt. 

Energiedach:
Straßenseitig ist von dem Gebäude nur die Wohnung für die Badleitung wahrnehmbar, an deren ebenfalls begrüntem Dach sich nach Norden das „Energiedach“ aus lichtdurchlässigen Photovoltaik-Modulen anschließt. 

Eingangsbereich:
Durch den fallenden Geländeverlauf der Straße Am Hangeweiher markiert das „Energiedach“ den darunter befindlichen Eingangsbereich mit Kassenhaus.

Längstansicht
Längstansicht

Projektinformationen

  • Nutzungen

    Erdgeschoss:
    Im Erdgeschoss befinden sich neben einem rollstuhlgerechtem Bereich Sammelumkleiden, Sanitäranlagen, Duschen sowie Büro- und Sozialräumen für Mitarbeitende und Lager. Alle Funktionsbereiche sind barrierefrei erreichbar. 

    Obergeschoss:
    Im Obergeschoss ist eine Wohnung für die Badleitung geplant. Ein „Energiedach“ aus Photovoltaik-Elementen prägt den neu geordneten Eingangsbereich mit einem neuen Kassenhaus und überdacht die zwischen Kassenhaus und Gebäude liegenden Freiluftumkleiden mit Spindanlagen.

    Dachaufsicht
    Dachaufsicht
  • Freianlagen

    Liegewiese und Vorplatz:
    Da das geplante Gebäude näher an der Straße errichtet und kleiner als der Altbau wird, ergibt sich eine geringfügige Vergrößerung der Liegewiese. Auf dem mit taktilen Streifen und Beleuchtung neu gestalteten Vorplatz vor dem Kassenhaus werden dezentral moderne Kassenautomaten angeordnet.
    Neben dem Kinderwagen und Rollstuhl-Zugang am Kassenhaus ermöglichen Drehkreuztore mit elektronischer Zugangskontrolle den zügigen Eintritt zum Freibadgelände. 

    Radstellplätze:
    Entlang des Gebäudes entstehen an der Straße neue, zusätzliche Fahrrad- und Lastenfahrrad-Stellplätze.

  • Eckdaten

    • Netto-Raumfläche NRF: ca. 550 m²
    • Brutto-Rauminhalt BRI: ca. 2.900 m³
    • Ausführungsstart: September 2023
    • Voraussichtliche Fertigstellung: 2025
    • Architekten: Kaiser Schweitzer Architekten
    • Mittelbedarf: ca. 6,8 Mio. €
    • Förderprogramm: 1.485.000 €  über das Bundesprogramm „Sanierung kommunaler Einrichtungen in den Bereichen Sport, Jugend und Kultur“ des Bundesministeriums für Wohnen, Stadtentwicklung und Bauwesen
  • Zeichnungen

    Lageplan
    Lageplan
    Ansicht Straße
    Ansicht Straße
    Längstschnitt
    Längstschnitt
    Nordansicht
    Nordansicht
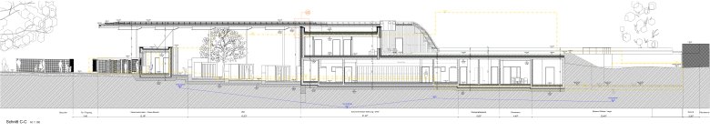
    Querschnitt
    Querschnitt
    Längstansicht
    Längstansicht



Förderung

Über das Förderprogramm des Bundes „Sanierung kommunaler Einrichtungen in den Bereichen Sport, Jugend und Kultur“ des Bundesministeriums für Wohnen, Stadtentwicklung und Bauwesen wird das Projekt mit 1.485.000 € gefördert.

Fördergeber

Hilfe zur Barrierefreiheit

  • Allgemein

    Wir sind bemüht, unsere Webseiten barrierefrei zugänglich zu gestalten. Details hierzu finden Sie in unserer Erklärung zur Barrierefreiheit. Verbesserungsvorschläge können Sie uns über unser Feedback-Formular "Barriere melden" zukommen lassen.

  • Schriftgröße

    Um die Schriftgröße anzupassen, verwenden Sie bitte folgende Tastenkombinationen:

    Größer

    command
    +

    Kleiner

    command

    Größer

    Strg
    +

    Kleiner

    Strg
  • Tastaturnavigation

    Verwenden Sie TAB und SHIFT + TAB, um durch nächste / vorherige Links, Formularelemente und Schaltflächen zu navigieren.

    Verwenden Sie ENTER, um Links zu öffnen und mit Elementen zu interagieren.

  • Kontrastmodus

    Drücken Sie die folgende Tastenkombination, um den Kontrast zu verringern bzw. zu vergrößern:

    Vergrößern

    control
    option
    command
    .

    Verringern

    control
    option
    command
    ,
    Hinweis: Die Kurzbefehle müssen in den Systemeinstellungen des Betriebssystems aktiviert sein.

    Drücken Sie die linke ALT-TASTE + linke UMSCHALTTASTE + DRUCK, um den Modus für hohen Kontrast schnell ein- oder auszuschalten.

  • Farben umkehren

    Drücken Sie folgende Tastenkombination, um die Farbumkehrung ein- und auszuschalten:

    control
    option
    command
    8
    Hinweis: Die Kurzbefehle müssen in den Systemeinstellungen des Betriebssystems aktiviert sein.

    Aktivieren Sie zuerst die Bildschirmlupe und schalten Sie dann die Farbumkehrung mit folgenden Tastenkombinationen ein und aus:

    1. Bildschirmlupe

    +

    2. Farben umkehren

    Strg
    Alt
    I
  • Bildschirmlupe

    Drücken sie folgende Tastenkombinationen, um die Bildschirmlupe zu verwenden:

    Ein-/ausschalten

    option
    command
    8

    Ansicht vergrößern

    option
    command
    =

    Ansicht verkleinern

    option
    command
    Hinweis: Die Kurzbefehle müssen in den Systemeinstellungen des Betriebssystems aktiviert sein.

    Einschalten / Ansicht vergrößern

    +

    Ansicht verkleinern