Diese Seite wurde automatisch übersetzt. Es kann daher zu Abweichungen oder Ungenauigkeiten im Text kommen. Verbindlich ist ausschließlich die Originalfassung. Rechtsansprüche aus Inhalten der übersetzten Version sind ausgeschlossen.

New outdoor pool building Hangeweiher

New building with changing rooms, sanitary facilities, office, social and living areas

Current: New construction site photos November 2025

In the time bar of the project phases, this project is in the construction phase.
Prospects for new outdoor pool building


Occasion and goal

The Hangeweiher outdoor pool is the only outdoor pool in Aachen and the surrounding area and is an indispensable leisure facility for the city of Aachen. In order to ensure the continued existence of the outdated outdoor pool, the pool facilities and the associated pool technology have already been renovated in the 1st and 2nd construction phases.

The existing outdoor pool building was an oversized complex of buildings with various significant structural and constructional defects. In order to completely transform it into a modern outdoor pool that meets today's requirements, a new replacement building, including a new entrance and ticket office area, will be erected once the old building has been cleaned up and demolished.

  • Key data

    • Start of implementation 2023
    • Expected completion: 2026
    • Net floor space: approx. 550m²
    • Gross volume: approx. 2,900m³
    • Architects: Kaiser Schweitzer Architects

Construction site photos

  • December 2025 Concrete work + window system cash desk building

    Preparations for the final concrete work
    Preparations for the final concrete work
    The final concrete work was carried out.
    The final concrete work was carried out.
    The final concrete work has been stripped.
    The final concrete work has been stripped.
    The window system at the ticket booth has been installed...
    The window system at the ticket booth has been installed...
    ...still without glass to be on the safe side.
    ...still without glass to be on the safe side.



  • November 2025 Fresh air changing rooms + floor replacement + installations

    Final installation of the lights in the warm changing rooms
    Final installation of the lights in the warm changing rooms
    Final installation of the lights in the WC facilities
    Final installation of the lights in the WC facilities
    Pre-installation in the showers
    Pre-installation in the showers
    The soil replacement in the area of the interim buildings has been completed.
    The soil replacement in the area of the interim buildings has been completed.
    Concreting work for the fresh air changing rooms
    Concreting work for the fresh air changing rooms
    Concreting work for the fresh air changing rooms
    Concreting work for the fresh air changing rooms
    Concreting work for the fresh air changing rooms
    Concreting work for the fresh air changing rooms


  • October 2025 Dismantling of interim container

    A new perspective on the new main building after the interim containers have been dismantled
    A new perspective on the new main building after the interim containers have been dismantled
    A new perspective on the new main building after the interim containers have been dismantled
    A new perspective on the new main building after the interim containers have been dismantled
    The last two containers
    The last two containers
    Departure to the new location
    Departure to the new location
    Placing containers in confined spaces
    Placing containers in confined spaces
    Bathroom manager's office approaching...
    Swim master office on the approach...
    The dismantling begins.
    The dismantling begins.
    Preparations are being made to remove the containers.
    Preparations are being made to remove the containers.
    Preparations for dismantling the containers
    Preparations for dismantling the containers
    Numerous visitors
    Numerous visitors...
  • September 2025 Demolition + tiles + completion of staff area

    The view of the new building is unobstructed and the wooden fence has been dismantled.
    The view of the new building is unobstructed and the wooden fence has been dismantled.
    Wall tiles in the ladies' WC
    Wall tiles in the ladies' WC
    Wall tiles in the hallway
    Wall tiles in the hallway
    The staff room shortly before completion and, on the right, the final cleaning of the staff area.
    The staff room shortly before completion and, on the right, the final cleaning of the staff area.
    Demolition of the old ticket office
    Demolition of the old ticket office
    Demolition of the old ticket office
    Demolition of the old ticket office
    The old and the new ticket office, without the separating wooden fence.
    The old and the new ticket office, without the separating wooden fence.
  • August 2025 Tiles + paving

    The tiling work is progressing.
    Tiling work
    Tiling work on walls and floors
    Tiling work on walls and floors
    The tiling work is progressing, here you can see the waterproofing work.
    Waterproofing work in the public WC
    The paving work is progressing.
    Start of paving work on the outdoor pool side


  • July 2025 Ticket office + outdoor facilities + tiles

    Cash desk house stripped
    Cash desk house stripped
    Start of outdoor facilities work on the outdoor pool side
    Start of outdoor facilities work on the outdoor pool side
    Substructure for paving work in front of staff and storage area
    Substructure for paving work in front of staff and storage area
    Waterproofing is applied before tiling work in ladies' showers.
    The waterproofing in the ladies' showers has been completed.
    Waterproofing work in the men's showers
    Waterproofing work in the men's showers
    The first tiles in the staff area
    The first tiles in the staff area


  • June 2025 Wooden façade + suspended ceilings + ticket office

    The view from the outdoor pool, the scaffolding has already been dismantled.
    The view from the outdoor pool, the scaffolding has already been dismantled.
    The wooden façade on the outdoor pool side has been completed and the scaffolding removed.
    The wooden façade on the outdoor pool side has been completed and the scaffolding removed.
    The suspended ceiling and wall installations in the ladies' WC
    Installation of suspended ceiling with technical installations in WC Ladies
    On the left is the technical room, on the right the suspended ceiling in the staff area.
    On the left in the picture the technical room, on the right installation suspended ceiling with technical installations in the staff area
    The oval ticket office, a masterful feat of craftsmanship.
    Shell construction of the oval ticket office - a masterpiece of craftsmanship
    The shell of the oval ticket office building.
    The shell of the oval ticket office building.


  • May 2025 Gates + technology + ticket office + wooden façade

    Construction site and outdoor pool operations run in parallel.
    Construction site and outdoor pool operations run in parallel.
    The new gates to the park have been installed.
    The new gates to the park have been installed.
    Smoothed walls and technical installations under the ceiling
    Smoothed walls and technical installations under the ceiling
    The brickwork of the rounded floor plan of the ticket booth has been completed.
    The brickwork of the oval ticket office building has been completed.
    The masonry work on the ticket booth is progressing...
    The masonry work on the ticket booth is progressing...
    Work on the wooden façade
    Work on the wooden façade


  • March 2025 Plastering work

    The preparatory work for the plastering work in the shower area has been completed.
    The preparatory work for the plastering work in the shower area has been completed.
    The picture shows preparatory work for the plastering in the corridor area and plastering work in the staff room.
    The picture shows preparatory work for the plastering in the corridor area and plastering work in the staff room.


  • December 2024 Green roof + apartment extension

    The substrate layer of the green roof was created.
    The substrate layer of the green roof was created.
    The screed in the apartment has been laid.
    The screed in the apartment has been laid.
  • April 2025 Start of construction of the cash office building + completion of the staff apartment

    Shell construction work for the ticket office
    Shell construction work for the ticket office
    The office apartment was completed.
    The office apartment was completed.
    The underfloor heating in the WC areas is in progress.
    The underfloor heating in the WC areas is in progress.


  • October 2024 Installation + expansion

    The shower installations.
    The shower installations.
    The drywall substructure in the apartment has been installed.
    The drywall substructure in the apartment has been installed.


  • June to August 2024 Shell construction

    The outdoor pool is open despite the major construction site.
    The outdoor pool is open despite the major construction site.
    Walls upper floor
    Walls upper floor
    The ground floor walls have been constructed.
    The ground floor walls have been constructed.
    Base plate
    Base plate
  • March 2024 Start of shell construction work

    Start of the shell construction
    Start of the shell construction
    Construction site in the rain
    Construction site in the rain
  • November 2023 Dismantling

    Sorting the demolition materials
    Sorting the demolition materials
    Dismantling work with heavy equipment
    Dismantling work with heavy equipment
  • Stock photos

    Aerial photo inventory
    Aerial photo inventory
    Existing image of the ramp system

Concept

A compact new building with only one or two storeys will be erected.

Solid construction and green roof:
The solid construction building with a timber façade is nestled into the slope facing the street, utilizing the topography of the terrain so that the green roof on the first floor continues the landscape.

Energy roof:
On the street side, only the apartment for the bathroom management is visible from the building, whose green roof is adjoined to the north by the "energy roof" made of translucent photovoltaic modules.

Entrance area:
The "energy roof" marks the entrance area with ticket office below due to the sloping terrain of the street Am Hangeweiher.

Longitudinal view
Longitudinal view

Project information

  • Uses

    First floor:
    On the first floor, there is a wheelchair-accessible area, shared changing rooms, sanitary facilities, showers, offices and social rooms for employees and storage. All functional areas are barrier-free.

    Upper floor:
    An apartment for the bathroom management is planned for the upper floor. An "energy roof" made of photovoltaic elements characterizes the newly arranged entrance area with a new ticket office and covers the open-air changing rooms with lockers located between the ticket office and the building.

    Roof supervision
    Roof supervision
  • Outdoor facilities

    Sunbathing lawn and forecourt:
    As the planned building will be constructed closer to the road and smaller than the old building, the sunbathing lawn will be slightly larger. The forecourt in front of the ticket office will be redesigned with tactile strips and lighting, and modern ticket machines will be installed in a decentralized location.
    In addition to baby carriage and wheelchair access at the ticket office, turnstile gates with electronic access control will allow swift entry to the outdoor pool area.

    Bicycle parking spaces:
    New, additional bicycle and cargo bike parking spaces are being created along the building on the street.

  • Key data

    • Net room area NRF: approx. 550 m²
    • Gross cubic capacity BRI: approx. 2,900 m³
    • Start of execution: September 2023
    • Expected completion: 2025
    • Architects: Kaiser Schweitzer Architects
    • Funds required: approx. € 6.8 million
    • Funding program: € 1,485,000 via the federal program "Renovation of municipal facilities in the areas of sport, youth and culture" of the Federal Ministry of Housing, Urban Development and Construction
  • Drawings

    Site plan
    Site plan
    Street view
    Street view
    Longitudinal cut
    Longitudinal cut
    North view
    North view
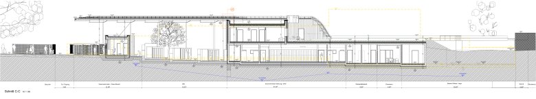
    Cross section
    Cross section
    Longitudinal view
    Longitudinal view



Promotion

The project is being funded with €1,485,000 from the Federal Ministry of Housing, Urban Development and Construction's "Renovation of municipal facilities in the areas of sport, youth and culture" funding program.

Sponsor

Help with accessibility

  • General

    We make every effort to ensure that our websites are accessible. You can find details on this in our accessibility statement. You can send us suggestions for improvement using our"Report a barrier" feedback form.

  • Font size

    To adjust the font size, please use the following key combinations:

    Larger

    Ctrl
    +

    Smaller

    Ctrl
  • Keyboard navigation

    Use TAB and SHIFT + TAB to navigate through next/previous links, form elements and buttons.

    Use ENTER to open links and interact with elements.